Verkaveling Fortstraat

Vaart-Zuid 13 , 9881 Bellem

Uw bouwadviseur

Maxim Missiaen

+32 56665945 maxim@cnest.be

Beschrijving

Kom de laatste 3 woningen ontdekken tijdens het opendeurmoment op woensdag 24 september tussen 16u en 18u.

NIEUWBOUWPROJECT TE KOOP - BELLEM (AALTER)


Laatste 3 woningen te koop!

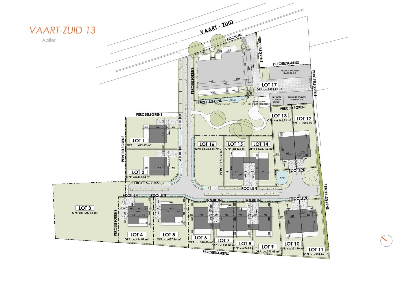
In het pittoreske Bellem (deelgemeente van Aalter), aan de Vaart, realiseren we de verkaveling Fortstraat met 16 nieuwbouwwoningen, in een rustige en groene omgeving.
Een kasseistrook in het midden van het betonnen karrespoor verbindt een mix van moderne en landelijke woningen en dit met een knipoog naar het verleden.
In het midden van de verkaveling is er een gemeenschappelijke groenzone waar we de oude bomen behouden hebben.

Deze projectontwikkeling biedt ruime woningen tot maar liefst 228 m², met aandacht voor een aantrekkelijke architectuur en een maximale woonkwaliteit.

Prijzen vanaf 463.000 euro (excl. kosten).

Pluspunten:
  • Rustige en centrale ligging langs het water;
  • Kleinschalige verkaveling met 16 woningen;
  • Mix van moderne en landelijke architectuur;
  • Kwalitatieve afwerking;
  • Vloerverwarming;
  • Energiezuinige woningen (BEN) met lucht/water warmtepomp;
  • Snelle bewoning mogelijk!
  • Vaste prijsgarantie!
  • ...

Contacteer ons voor meer informatie omtrent deze nieuwe verkaveling!
 

Meer info over dit project?

Green cutout

Ontdek ook

Verkaveling Engelstraat

Aartrijke | 5 wooneenheden

In de Engelstraat in Aartrijke bouwen we 5 landelijke, energiezuinige woningen met 3. Iedere woning heeft parkeermogelijkheden achteraan de tuin.

Residentie De Koster

LAATSTE 3 APPARTEMENTEN!

Residentie De Koster

Zedelgem | 7 wooneenheden

In Zedelgem realiseren we binnenkort Residentie De Koster met 6 appartementen en een praktijkruimte op de benedenverdieping. Dit alles met oog voor energiezuinig wonen!

Verkaveling Paepevelden

75% VERKOCHT

Verkaveling Paepevelden

Bavegem | 16 wooneenheden

In Bavegem (Sint-Lievens-Houtem) realiseren we de verkaveling Paepevelden met 16 moderne nieuwbouwwoningen nabij het centrum.