Bouwgrond Lot 1

Berten Pilstraat 35 Lot 1, 8980 Zonnebeke

€ 285 000 *
(*) Prijzen zijn exclusief kosten en BTW

Uw bouwadviseur

Maxim Missiaen

+32 56665945 maxim@cnest.be

Beschrijving

NIEUW TE KOOP 

In de Berten Pilstraat in Zonnebeke, op het einde van een doodlopend gedeelte, bouwen we binnenkort 2 nieuwbouwwoningen.
Lot 1 in dit project bieden we aan met onze Bouwen Op Maat formule.
Hierbij heeft u als koper de vrije keuze in ontwerp met onze architect.

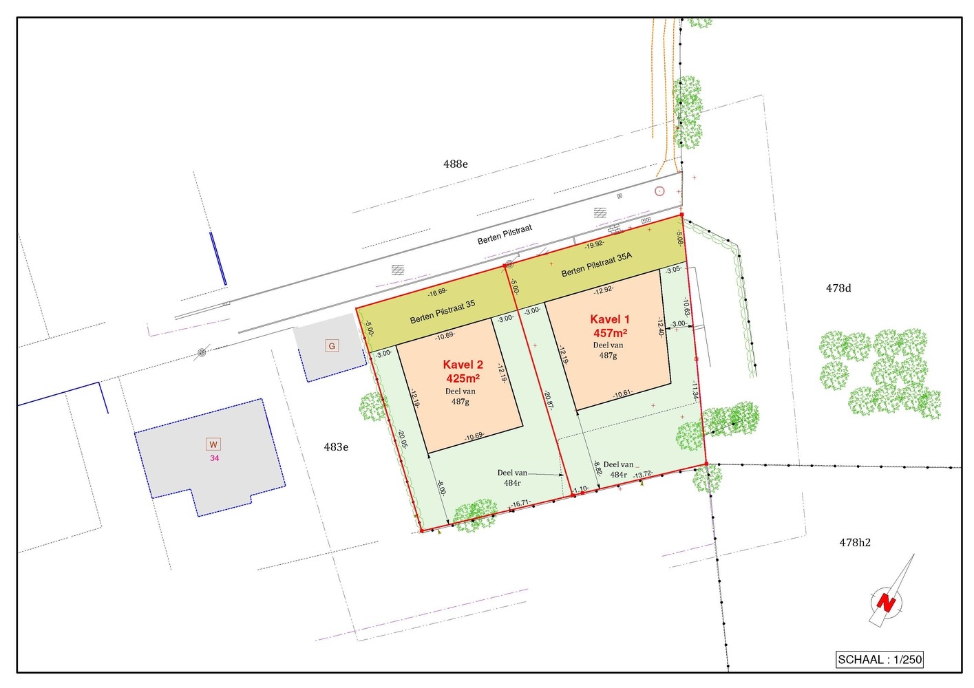
Deze bouwgrond bestaat uit een gedeelte bouwgrond van 457 m² met ruime bouwvoorschriften en een naastgelegen weide van maar liefst 3300 m². In totaliteit een oppervlakte van 3757 m²!
Ideaal voor mensen die graag veel open ruimte wensen of bijvoorbeeld een paard bij huis willen hebben.

Pluspunten:
  • Rustige en landelijke ligging met open zicht;
  • Ontwerp en afwerking naar eigen smaak;
  • Ideaal voor mensen met dieren of groene vingers;
  • ...

Interesse om met ons op deze grond te bouwen? Contacteer ons voor meer informatie.
 

Meer info over dit pand?

Green cutout

Algemeen

Type

Bouwgrond

Straat

Berten Pilstraat

Stad

Zonnebeke

Verdieping

-99

Bewoonbare oppervlakte

-

Perceeloppervlakte

3 757 m²

Extra

Stedenbouwkundige bestemming

Woongebied

Verkavelingsvergunning

Ja

Omgevingsvergunning

Nee

Dagvaarding

Geen rechterlijke herstelmaatregel of bestuurlijke maatregel opgelegd

Voorkooprecht

Nee

Overstromingsgevoeligheid

Niet overstromingsgevoelig