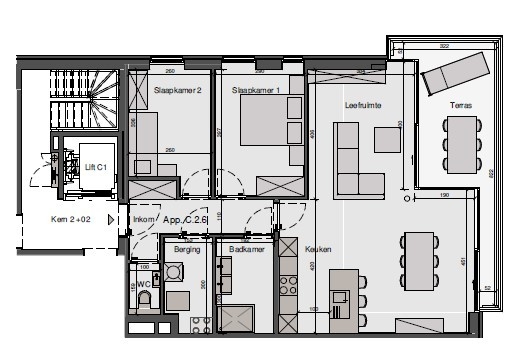
Appartement C.2.6

Sint-Vincentiusstraat 1 C.2.6, 8760 Meulebeke

Verkocht

Uw bouwadviseur

Maxim Missiaen

+32 56665945 maxim@cnest.be

Beschrijving

Gelegen op het tweede verdieping van residentie Ter Weezen, vinden we dit 2- slaapkamerappartement terug.

Indeling: Inkom, apart toilet, leefruimte op hoek die zorgt voor veel lichtinval, open keuken, technische berging, badkamer en 2 slaapkamers. Terras grenzend aan de leefruimte.

Appartement: 91,76m²
Terras: 14,56m²

Troeven:
- Hernieuwbare energie: warmtepompen & zonnepanelen
- Lage temperatuur verwarming: vloerverwarming
- Groene omgeving, doch dichtbij gemeentekern
- BEN appartementen E20 = 100% vrijstelling op onroerende voorheffing eerste 5 jaar

Ter Weezen is de laatste fase van de totaal ontwikkeling Woonpark Sint-Vincentius. Het is een tijdloos en energiezuinig gebouw waar je graag thuis komt!

Meer info over dit pand?

Residentie Ter Weezen C.2.6
Green cutout

Algemeen

Type

Appartement

Straat

Sint-Vincentiusstraat

Stad

Meulebeke

Verdieping

2

Bewoonbare oppervlakte

92 m²

Opp. terras

14 m²

Slaapkamers

2

Extra

Stedenbouwkundige bestemming

Woongebied

Verkavelingsvergunning

Ja

Omgevingsvergunning

Ja

Dagvaarding

Geen rechterlijke herstelmaatregel of bestuurlijke maatregel opgelegd

Voorkooprecht

Nee

Overstromingsgevoeligheid

Niet overstromingsgevoelig

Downloads