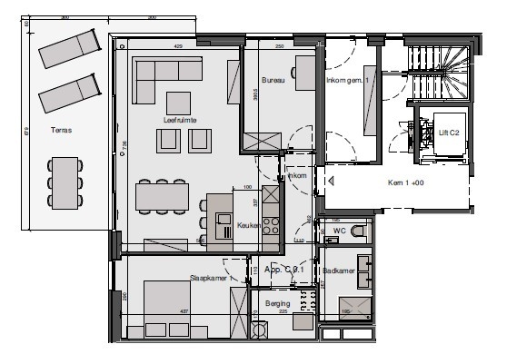
Appartement C.0.1

Sint-Vincentiusstraat 1 C.0.1, 8760 Meulebeke

Uw bouwadviseur

Maxim Missiaen

+32 56665945 maxim@cnest.be

Beschrijving

Gelegen op de gelijkvloerse verdieping van residentie Ter Weezen, vinden we dit 2- slaapkamerappartement terug.

Indeling: Inkom, apart toilet, leefruimte op hoek die zorgt voor veel lichtinval, open keuken, technische berging, badkamer, 1 slaapkamer en bureauruimte. Terras met privatieve tuin grenzend aan de leefruimte.

Appartement: 86,65m²
Terras: 23,97m² + 59,80m² tuin

Troeven:
  • Hernieuwbare energie: warmtepompen & zonnepanelen
  • Lage temperatuur verwarming: vloerverwarming
  • Groene omgeving, doch dichtbij gemeentekern
  • BEN appartementen E20 = 100% vrijstelling op onroerende voorheffing eerste 5 jaar

Ter Weezen is de laatste fase van de totaal ontwikkeling Woonpark Sint-Vincentius. Het is een tijdloos en energiezuinig gebouw waar je graag thuis komt!

Meer info over dit pand?

Residentie Ter Weezen C.0.1
Green cutout

Algemeen

Type

Appartement

Straat

Sint-Vincentiusstraat

Stad

Meulebeke

Verdieping

0

Bewoonbare oppervlakte

87 m²

Opp. terras

24 m²

Opp. tuin

60 m²

Slaapkamers

2

Extra

Stedenbouwkundige bestemming

Woongebied

Verkavelingsvergunning

Ja

Omgevingsvergunning

Ja

Dagvaarding

Geen rechterlijke herstelmaatregel of bestuurlijke maatregel opgelegd

Voorkooprecht

Nee

Overstromingsgevoeligheid

Niet overstromingsgevoelig

Downloads